Cara Pasang Plafond Gypsum Rangka Hollow Baja Ringan
Table of Contents
Pasang Plafond Gypsum
Pasang Plafon Gypsum dengan rangka hollow baja ringan telah menjadi pilihan populer dalam dunia konstruksi dan renovasi interior, baik untuk rumah tinggal, perkantoran, maupun bangunan komersial. Proses pemasangan plafon gypsum ini dikenal karena kecepatan pengerjaannya, bobotnya yang ringan, serta hasil akhir yang rapi dan estetis. Namun, agar hasil yang diperoleh sesuai harapan dan memenuhi standar keamanan, diperlukan pemahaman teknis yang tepat mulai dari pemilihan material hingga tahapan pelaksanaannya.
Mengenal Plafon Gypsum dan Kelebihannya
Plafon gypsum adalah salah satu jenis material plafon yang terbuat dari kalsium sulfat dihidrat (CaSO₄·2H₂O) yang dikeringkan dan dibentuk menjadi lembaran tipis. Dalam dunia konstruksi modern, gypsum banyak digunakan sebagai plafon karena memiliki berbagai keunggulan dibandingkan dengan material plafon lainnya seperti triplek, eternit, atau PVC.
Karakteristik Material Gypsum
Material gypsum memiliki bobot ringan, mudah dibentuk, dan permukaan yang halus. Lembaran plafon gypsum biasanya memiliki ketebalan standar 9 mm hingga 12 mm, dengan ukuran umum 120 cm x 240 cm. Kombinasi antara rangka plafon dari hollow baja ringan atau rangka kayu dengan papan gypsum memungkinkan instalasi yang cepat dan presisi.
Gypsum dikenal sebagai material yang tidak mudah terbakar, memiliki daya tahan terhadap perubahan suhu, serta ramah lingkungan karena dapat didaur ulang.
Kelebihan Plafon Gypsum
Berikut beberapa keunggulan utama dari penggunaan plafon gypsum:
- Tampilan Estetis dan Rapi
- Permukaan plafon gypsum sangat rata dan mudah dicat, memungkinkan hasil akhir yang bersih, halus, dan menarik. Desain drop ceiling, hidden lamp, atau molding artistik dapat dibentuk dengan mudah menggunakan gypsum.
- Peredam Suara yang Baik
- Plafon gypsum memiliki sifat soundproofing alami yang cukup efektif dalam meredam suara. Ini menjadikannya pilihan populer untuk rumah tinggal, ruang kerja, maupun studio.
- Tahan Api
- Berdasarkan pengujian laboratorium, plafon gypsum dapat menahan panas hingga 180°C - 250°C dan tidak meleleh atau melepaskan zat beracun. Beberapa varian bahkan memiliki rating ketahanan api selama 30 hingga 60 menit (fire-rated).
- Mudah Diperbaiki
- Jika terjadi kerusakan, plafon gypsum mudah diganti sebagian tanpa perlu membongkar keseluruhan plafon. Hal ini memberikan efisiensi dalam pemeliharaan jangka panjang.
- Ramah Lingkungan
- Gypsum merupakan bahan alami yang dapat didaur ulang hingga 100%. Proses produksinya juga menghasilkan jejak karbon yang lebih rendah dibandingkan dengan bahan plafon lainnya.
Kekurangan yang Perlu Diperhatikan
Meski memiliki banyak keunggulan, plafon gypsum juga memiliki beberapa kelemahan, antara lain:
- Kurang tahan terhadap air dan kelembapan tinggi.
- Rentan patah jika tidak dipasang dengan benar.
- Memerlukan tenaga ahli saat instalasi untuk hasil maksimal.
Panduan Pemasangan Plafon Gypsum dengan Rangka Hollow Baja Ringan
Desain Rangka Hollow Baja Ringan untuk Plafon Gipsum dan Kalsiboard
DIY vs Jasa Tukang Profesional
Memasang plafon gypsum bisa dilakukan sendiri (DIY, Do-It-Yourself) maupun menggunakan jasa tukang profesional. Berikut perbandingan keduanya dari segi kelebihan, kekurangan, risiko, biaya, dan waktu:
Pasang Sendiri (DIY)
- Kelebihan: Hemat biaya karena tidak perlu membayar upah tukang. Anda bisa mengatur jadwal kerja sendiri dan berkreasi sesuai keinginan. Pemasangan mandiri juga memberi kepuasan tersendiri saat proyek selesai dengan baik.
- Kekurangan: Membutuhkan keterampilan teknik dan pemahaman konstruksi. Jika tidak berpengalaman, risiko kesalahan pemasangan cukup tinggi - misalnya rangka tidak kuat atau papan gypsum terpasang tidak rapi, yang dapat menyebabkan plafon melengkung bahkan ambruk jika salah pasang. Pemasangan sendiri juga memakan waktu lebih lama karena Anda harus belajar langkah-langkahnya dulu dan bekerja sendirian atau dengan bantuan minimal.
- Risiko & Keselamatan: Risiko cedera saat bekerja di ketinggian (jatuh dari tangga) perlu diperhatikan. Gunakan alat pengaman (helm, kacamata, sarung tangan) untuk melindungi diri selama bekerja. Selain itu, kesalahan kecil seperti penempatan sekrup yang kurang tepat bisa berakibat fatal terhadap kekuatan plafon.
- Biaya: Secara material, biaya DIY relatif lebih murah karena hanya membeli bahan. Sebagai gambaran, material plafon gypsum untuk ruangan 3×4 meter (12 m²) sekitar Rp 800 ribu (termasuk papan gypsum dan rangka hollow). Tanpa tenaga profesional, Anda menghemat biaya upah. Namun, ingat bahwa jika terjadi kesalahan dan harus diperbaiki, bisa jadi biayanya malah bertambah.
Menggunakan Tukang Profesional
- Kelebihan: Tukang profesional sudah memiliki pengalaman dan keahlian, sehingga hasil pemasangan biasanya rapi, kuat, dan sesuai standar. Waktu pengerjaan juga lebih cepat - tim tukang berpengalaman dapat memasang plafon satu ruangan dalam hitungan 1-2 hari, termasuk finishing dasar. Anda sebagai pemilik rumah tidak perlu repot, cukup mengawasi hasilnya saja.
- Kekurangan: Biaya lebih tinggi, karena Anda perlu membayar upah tenaga kerja. Umumnya upah borongan pemasangan plafon gypsum standar berkisar Rp 40.000-50.000 per m² (untuk plafon rata sederhana), di luar biaya material. Untuk desain yang lebih kompleks (misal plafon bertingkat/drop ceiling), upah bisa lebih mahal. Selain itu, Anda harus meluangkan waktu mencari tukang yang tepercaya dan mengawasi pekerjaan mereka.
- Risiko & Pertimbangan: Dengan tukang, risiko kesalahan pemasangan lebih kecil, namun pilih tukang yang berpengalaman agar tidak terjadi hasil yang mengecewakan. Pastikan juga membuat perjanjian jelas soal biaya dan waktu pengerjaan. Kekurangan lainnya, Anda memiliki lebih sedikit kontrol kreatif selama proses berlangsung (meski Anda bisa berdiskusi desain di awal). Namun, banyak tukang yang akan mengikuti keinginan klien selama masih sesuai prosedur teknis.
Alat dan Bahan yang Dibutuhkan
Sebelum mulai pemasangan, siapkan alat dan bahan secara lengkap. Daftar berikut mencakup spesifikasi rangka hollow, jenis papan gypsum, alat pemotong, pengencang, alat ukur, serta perlengkapan pengaman:
Bahan Utama
Rangka Hollow Baja Ringan
Digunakan sebagai struktur rangka plafon. Umumnya terdiri dari dua jenis ukuran penampang:
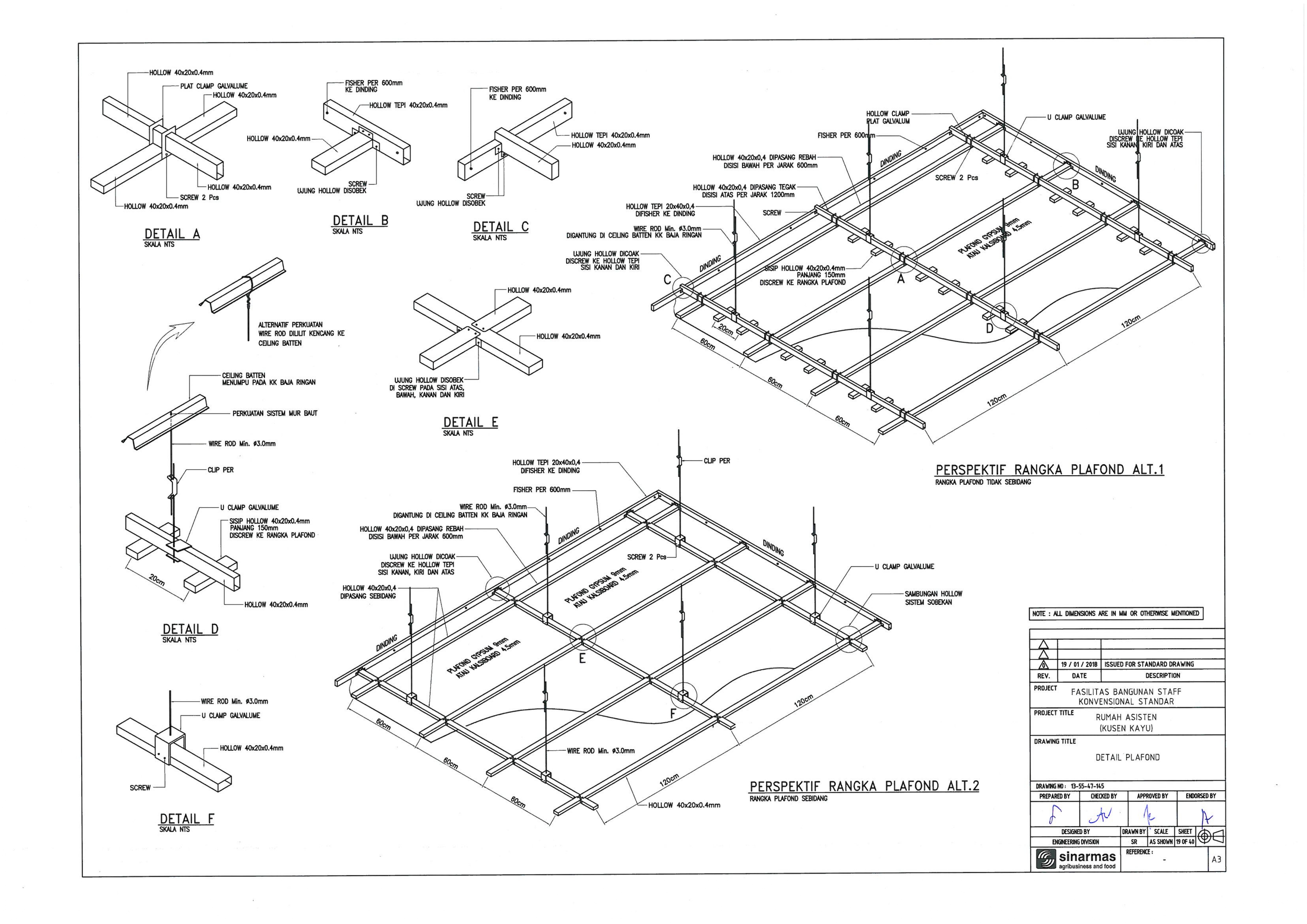
- Hollow 4×4 cm (atau 40×40 mm) sebagai rangka utama (penopang utama). Panjang standar batang hollow biasanya 4 meter per batang. Pilih hollow dengan ketebalan minimal 0,3 mm (lebih tebal lebih kuat). Hollow 4×4 dipasang melintang ruangan untuk membentuk struktur utama rangka plafon.
- Hollow 2×4 cm (20×40 mm) sebagai rangka sekunder (pengikat silang). Ketebalan juga sebaiknya 0,3 mm ke atas. Hollow 2×4 dipasang tegak lurus terhadap hollow utama, membentuk pola kotak (grid) dan menopang sambungan papan gypsum.
Tips: Pastikan membeli hollow galvanis atau galvalum berkualitas agar rangka tahan karat dan kuat. Ketebalan 0,25 mm sebenarnya ada di pasaran, namun rangka tipis seperti ini sebaiknya dipasang dengan jarak lebih rapat (grid kecil 60×60 cm) supaya plafon tidak melendut. Lebih disarankan memilih hollow 0,3 mm atau lebih tebal untuk keamanan jangka panjang.
Papan Gypsum
Lembaran gypsum board sebagai penutup plafon. Ukuran standar papan gypsum adalah sekitar 120×240 cm (luas ~2,88 m² per lembar) dengan ketebalan 9 mm. Tersedia juga ketebalan 12 mm untuk kebutuhan khusus (misal peredam suara lebih baik) atau 8 mm untuk area kecil, namun 9 mm adalah yang paling umum digunakan. Pilih jenis gypsum sesuai lokasi:
- Gypsum standar: Cocok untuk ruangan kering (rumah, kantor biasa).
- Gypsum tahan lembap (tipe WR, water resistant): Untuk area agak lembap atau dekat kamar mandi.
- Gypsum tahan api (tipe FR, fire resistant): Umumnya untuk kebutuhan khusus (misal dekat dapur komersial atau area dengan standar kebakaran).
Pastikan jumlah lembar gypsum mencukupi luas plafon yang akan ditutup (dengan sedikit cadangan untuk pemotongan). Contohnya, ruangan 3×4 m (12 m²) biasanya butuh 4 lembar gypsum 120×240 cm (karena 4 lembar × 2,88 m² ≈ 11,5 m²).
Pengencang dan Perekat
- Sekrup Gypsum: Sekrup khusus berbentuk lancip (self-drilling screw) untuk menempelkan papan gypsum ke rangka hollow. Ukuran sekrup gypsum biasanya panjang 1/2 inch hingga 1 inch (±2-3 cm). Siapkan cukup banyak sekrup; jumlahnya kira-kira 20 buah per lembar gypsum atau 1 setiap 20 cm pada setiap hollow. Gunakan mata bor/phillips bit yang sesuai kepala sekrup (biasanya philips/cross).
- Fisher/Dynabolt: Jika dinding rumah dari beton atau bata keras, siapkan paku fisher (dengan sekrup) atau dynabolt ukuran ±6-8 mm untuk memasang wall angle (siku plafon) ke tembok atau balok beton. Untuk dinding bata merah/bata ringan, bisa gunakan paku beton ukuran 5 cm.
- Paku Keling / Sekrup Hollow: Beberapa tukang menggunakan paku rivet (keling) atau sekrup khusus untuk menyambung batang hollow satu sama lain. Ini opsional tergantung teknik; sekrup gypsum pendek juga kadang dipakai untuk menyatukan hollow (karena cukup menembus dua lapis hollow tipis).
Material Pendukung Lain
- Profil Siku Plafon (Wall Angle): Besi siku (sudut) galvanis ukuran misal 30×30 mm atau 35×20 mm, ketebalan ±0,3 mm, dipasang keliling ruangan di dinding sebagai tumpuan tepi plafon gypsum. Panjang standar 3-4 m per batang.
- Compound dan Tape (untuk Finishing): Compound (dempul khusus gypsum) untuk menutup sambungan antar papan dan menutupi kepala sekrup. Joint tape (pita kertas/kain kasa) digunakan bersama compound agar sambungan tidak retak. Juga siapkan ampelas halus untuk meratakan hasil kompon.
- Lis Plafon (opsional): Jika menginginkan tampilan rapi di sudut pertemuan dinding dan plafon, siapkan lis profil gypsum atau PVC sesuai selera untuk dipasang setelah pengecatan.
Alat Kerja
Alat Ukur & Marking
Meteran (5m atau lebih) dan pensil/spidol untuk mengukur serta menandai posisi rangka di dinding dan titik hollow. Waterpass manual atau laser level sangat berguna untuk memastikan ketinggian plafon rata di sekeliling ruangan. Bisa juga memakai selang berisi air (waterpass sederhana) untuk menandai level ketinggian di dinding jika tidak ada waterpass panjang.
Alat Potong Logam
Gergaji besi atau gunting baja ringan untuk memotong batang hollow sesuai ukuran. Jika tersedia, angle grinder (gerinda) dengan mata potong logam bisa mempercepat pemotongan, tapi harus ekstra hati-hati dan biasanya untuk yang sudah terbiasa. Pastikan memotong hollow dengan rapi agar sambungan antar batang presisi.
Alat Bor dan Obeng
Bor listrik (drill) dengan mata bor beton (jika perlu memasang dynabolt/fisher ke tembok atau plafond beton). Bor ini juga digunakan sebagai screwdriver (dengan mata obeng) untuk mengebor sekrup gypsum ke hollow – biasanya memakai mode kecepatan rendah dengan mata obeng (+). Jika tidak ada bor listrik, bisa gunakan obeng tangan biasa, tapi pengerjaan akan jauh lebih lama dan memerlukan tenaga ekstra.
Tangga Lipat atau Scaffolding
Tangga kokoh diperlukan agar Anda bisa mencapai area plafon (karena plafon rata-rata >2,5 m tingginya). Pastikan tangga stabil; minta bantuan orang lain memegangi jika perlu. Untuk area luas atau tinggi (misal >3 m), pertimbangkan memakai scaffolding kecil agar lebih leluasa bergerak di dekat plafon.
Alat Pendukung Lain
Palu (untuk paku beton jika dipakai), tang rivet (jika menggunakan paku keling pada sambungan hollow), pisau cutter (memotong tape atau merapikan pinggiran gypsum jika ada kertas yang mencuat), ampelas, serta bak adukan kecil + kape untuk mengaplikasikan compound.
Alat Pelindung Diri (APD)
Helm proyek atau topi keras melindungi kepala dari benturan rangka. Kacamata safety penting saat memotong hollow (serpihan logam) dan mengebor plafon di atas kepala. Masker debu untuk mencegah terhirupnya serbuk gypsum atau debu beton. Sarung tangan kerja melindungi tangan dari tepi hollow yang tajam dan saat memegang bor. Kenakan sepatu yang menutup jari kaki (steel toe jika ada) untuk perlindungan ekstra.
Catatan: Pastikan area kerja bersih dan cukup ruang untuk menurunkan papan gypsum saat memotong. Siapkan alas atau perancah sederhana untuk menopang papan gypsum ketika akan disekrup ke rangka (karena ukurannya besar, pemasangan papan akan lebih mudah jika dibantu orang kedua untuk memegangnya).
Berikut tabel ringkas peralatan dan fungsinya:
| Alat | Fungsi |
|---|---|
| Meteran, Pensil, Waterpass | Mengukur ruangan, menandai ketinggian di dinding, memastikan level rata. |
| Gergaji besi / Gunting hollow | Memotong batang hollow baja ringan sesuai ukuran yang dibutuhkan. |
| Bor listrik + Mata obeng | Melubangi dinding untuk dynabolt/fisher; memasang sekrup pada hollow dan gypsum. |
| Obeng manual | Alternatif untuk memasang sekrup jika tidak ada bor listrik (lebih lambat). |
| Palu + Paku Beton | Memasang wall angle (profil siku) ke dinding (untuk dinding bata/beton). |
| Tangga / Scaffolding | Membantu menjangkau plafon yang tinggi saat memasang rangka dan papan gypsum. |
| APD (helm, kacamata, masker, sarung tangan) | Melindungi kepala, mata, paru-paru, dan tangan selama proses pemasangan. |
Langkah-langkah Pemasangan Plafon Gypsum
Setelah semua peralatan dan bahan siap, ikuti panduan langkah demi langkah berikut untuk memasang plafon gypsum dengan rangka hollow baja ringan:
Persiapan dan Pengukuran
Tentukan desain plafon yang diinginkan (plafon datar polos atau dengan drop/double ceiling). Ukur ketinggian plafon yang akan dipasang dari lantai. Umumnya plafon rumah dipasang pada ketinggian ~3 meter dari lantai, sesuaikan dengan desain dan tinggi ruangan. Gunakan meteran dan waterpass untuk menandai garis keliling pada dinding sesuai tinggi plafon yang diinginkan. Tarik garis lurus di sekeliling dinding sebagai panduan pemasangan rangka siku. Pastikan garis ini sudah horizontal rata (cek dengan waterpass atau laser level) karena garis inilah yang akan menjadi acuan rata/tidaknya plafon Anda.
Pemasangan Profil Siku (Wall Angle)
Pasang profil siku plafon di sepanjang garis yang telah ditandai pada dinding. Profil ini akan menjadi tumpuan tepi papan gypsum di sekeliling ruangan. Potong profil siku sesuai panjang dinding. Tempelkan tepat di bawah garis tanda tadi dan kencangkan ke dinding menggunakan paku beton, fisher + sekrup, atau dynabolt (pilih sesuai material dinding). Jarak antar paku sebaiknya sekitar 50 cm - 80 cm agar profil terpasang kuat. Pada sudut-sudut pertemuan, sambung profil siku dengan cara saling overlap atau potong siku 45° untuk hasil yang rapi. Setelah terpasang, periksa sekali lagi bahwa semua sisi profil siku berada pada level ketinggian yang sama (ini krusial untuk plafon rata).
Memasang Rangka Hollow Utama
Mulailah membuat kerangka plafon dengan memasang hollow utama (biasanya menggunakan hollow 4×4 cm) melintang ruangan. Hollow utama ini dipasang sejajar satu sama lain dengan jarak antar batang ±60 cm. Ujung-ujung hollow diletakkan di atas profil siku keliling yang sudah dipasang di dinding (atau diikat pada profil tersebut dengan sekrup). Jika ruangan lebih panjang dari batang hollow, sambung dua batang hollow dengan overlap minimal 20 cm dan kencangkan dengan sekrup/paku rivet.
Untuk menopang bagian tengah hollow (agar tidak melendut), ikat hollow utama ke struktur atap di atasnya:
- bisa dengan kawat penjepit atau hanger baja ringan yang diikat ke rangka atap/kaso setiap 80-100 cm.
Pastikan semua hollow utama sudah terpasang kokoh dan rata (gunakan waterpass untuk cek kerataan antar hollow).
Memasang Rangka Hollow Sekunder (Cross)
Setelah hollow utama terpasang, lanjutkan dengan memasang hollow 2×4 cm sebagai cross (pengikat melintang). Hollow sekunder ini dipasang tegak lurus terhadap hollow utama, dengan jarak sekitar 60 cm antar batang, sehingga membentuk pola kotak-kotak (grid) di langit-langit. Setiap perpotongan hollow utama dan sekunder dihubungkan dengan sekrup pendek (atau paku rivet) sehingga rangka membentuk ikatan yang kaku. Pastikan pula setiap tepian papan gypsum nantinya akan jatuh di tengah-tengah hollow - ini penting agar setiap sambungan papan gypsum punya tumpuan rangka yang cukup. Apabila ukuran ruangan tidak pas kelipatan 60 cm, atur jarak hollow terakhir di dekat dinding sedikit lebih rapat daripada 60 cm, yang penting setiap sambungan antar papan gypsum didukung hollow di bawahnya. Rangka plafon kini selesai, berupa grid hollow baja ringan yang kokoh.
Pemasangan Papan Gypsum
Inilah tahap yang membutuhkan ketelitian dan bantuan jika memungkinkan. Angkat papan gypsum lembaran pertama ke plafon (idealnya dibantu 1-2 orang supaya posisi bisa diatur tanpa merusak tepi papan). Pasang papan gypsum sedemikian rupa sehingga tepi papan berada di tengah-tengah hollow sesuai grid yang telah dibuat. Tahan papan di posisinya (gunakan tumpuan atau alat penyangga sementara bila perlu), lalu sekrup papan gypsum ke hollow. Gunakan sekrup gypsum setiap ±20 cm sepanjang pertemuan papan dan hollow. Pastikan sekrup masuk sedikit counter-sink (tenggelam) tapi jangan terlalu dalam agar tidak menembus kertas gypsum. Lanjutkan memasang lembar gypsum berikutnya, sambung ke lembar pertama.
Pola pemasangan biasanya zigzag:
- mulai baris pertama full board, baris berikutnya potong papan setengah dulu sehingga sambungan tidak lurus sebidang (mirip memasang bata) - tujuannya memberi kekuatan struktur. Setiap sambungan tepi papan harus bertemu tepat di atas hollow (sesuai yang sudah diatur pada langkah rangka).
Jika ada lubang lampu atau ventilasi, ukur dan potong dulu di papan gypsum (bisa pakai gergaji gipsum atau cutter untuk lubang bulat) sebelum papan diangkat dan dipasang.
Finishing Sambungan dan Permukaan
Setelah semua papan gypsum terpasang menutupi seluruh plafon, saatnya menutup sambungan dan merapikan permukaan:
- Oleskan joint compound pada setiap sambungan antar papan. Tempelkan joint tape di atasnya (pastikan tertutup rata tanpa gelembung), lalu lapisi lagi dengan compound sampai permukaan sambungan rata dengan papan. Lakukan hal yang sama pada bekas cekungan kepala sekrup - tutup dengan compound hingga halus. Biarkan compound mengering sesuai instruksi (umumnya beberapa jam hingga 1 hari).
- Setelah kering, haluskan area sambungan dengan ampelas halus hingga permukaan plafon rata dan mulus. Periksa seluruh area plafon, tambal bila ada celah atau lubang kecil tertinggal.
- Pemasangan lis plafon (jika ada) bisa dilakukan pada tahap ini, menempelkan lis di sudut pertemuan dinding-plafon menggunakan paku kecil atau lem khusus.
- Terakhir, plafon gypsum siap untuk dicat sesuai warna pilihan. Aplikasikan cat dasar (sealer) terlebih dahulu agar cat akhir melekat sempurna dan warna merata.
Pemasangan Fitur Tambahan
Jika diperlukan, pasang fitting lampu, ventilasi, atau insulasi tambahan. Misalnya, untuk lampu downlight yang ditanam, lubangi papan gypsum sesuai diameter lampu sebelum pemasangan (seperti dijelaskan di langkah 5). Kabel listrik untuk lampu sebaiknya sudah disiapkan sebelum papan terakhir dipasang sehingga quiver mudah menariknya keluar lewat lubang. Untuk insulasi panas/suara, bisa meletakkan lapisan glasswool atau rockwool di atas papan gypsum sebelum ditutup (biasanya dilakukan sebelum papan dipasang atau dengan menyelipkannya dari bukaan manhole). Pastikan semua sistem (listrik, HVAC jika ada) telah terpasang dan berfungsi sebelum menutup seluruh plafon.
Dengan langkah-langkah di atas, pemasangan plafon gypsum rangka hollow dapat diselesaikan. Selalu periksa kembali kekuatan tiap sambungan dan pastikan tidak ada bagian rangka atau papan yang longgar. Pemasangan yang cermat akan menghasilkan plafon yang rata, rapi, dan kuat.
Penyesuaian Proses Berdasarkan Lokasi
Pemasangan plafon gypsum pada dasarnya sama untuk berbagai jenis bangunan, namun ada beberapa penyesuaian tergantung lokasi:
- rumah tinggal, kantor, atau bangunan komersial lainnya.
Perbedaan ini biasanya terkait tinggi plafon, sistem pencahayaan, estetika desain, dan kebutuhan isolasi. Tabel berikut menjelaskan perbedaan dan perhatian khusus tersebut:
| Aspek | Rumah Tinggal | Kantor/Perkantoran | Bangunan Lain (Toko/Gedung Komersial) |
|---|---|---|---|
| Tinggi Plafon | Umumnya lebih tinggi untuk kenyamanan (≈ 2,8-3,5 meter). Memberi kesan luas dan sirkulasi udara baik. Bisa disesuaikan selera pemilik; rumah mewah kadang >3,5 m. | Biasanya standar& cenderung lebih rendah demi efisiensi ruang dan AC sentral. Standar kantor sekitar 2,6-2,8 m. Ketinggian ini cukup fungsional dan sesuai regulasi, misalnya PP menetapkan minimum 2,7 m. | Bervariasi, tergantung fungsi: Toko ritel sering plafonnya dibuat tinggi untuk menarik perhatian (bisa 3-4 m), tapi toko kecil mungkin mengikuti standar 2,7 m. Gedung komersial (lobi hotel, aula) bisa sangat tinggi (bahkan double height) demi estetika dan sirkulasi. |
| Sistem Pencahayaan | Fleksibel sesuai desain interior. Banyak rumah memakai lampu gantung dekoratif atau downlight di plafon gypsum. Posisi lampu ditentukan saat pemasangan (lubang downlight dibuat sebelum papan terpasang). Bisa juga menambah covelight/LED strip pada model drop ceiling untuk efek pencahayaan tidak langsung. | Kantor cenderung memakai panel LED atau lampu neon model grille yang tersembunyi di balik plafon (jika memakai ceiling tile) atau downlight LED untuk tampilan rapi. Pencahayaan difokuskan pada terang merata untuk kerja, bukan dekoratif. Titik lampu biasanya modular dan jumlah banyak, diperhitungkan agar menyala rata di seluruh ruang kerja. | Tergantung jenis bangunan: Toko butik mungkin memasang spotlight pada plafon gypsum untuk menyorot produk. Supermarket/pabrik cenderung pakai lampu baylight tergantung tinggi plafon. Di gedung publik (aula, ballroom) sering dipasang lampu gantung besar atau sistem pencahayaan artistik lain. Intinya, perencanaan titik lampu harus disesuaikan fungsi ruangan sejak awal pemasangan plafon. |
| Estetika & Desain | Rumah tinggal kerap mengutamakan estetika: bisa dibuat drop ceiling bertingkat, tambahan lis profil dekoratif di tepi, atau bentuk khusus (misal kubah gypsum, cove lighting) untuk keindahan ruangan. Warna plafon biasanya putih atau warna muda, tapi bisa divariasikan sesuai tema interior. | Di kantor, desain plafon umumnya lebih sederhana dan fungsional. Plafon rata tanpa banyak ornamen untuk kesan profesional. Warna putih mendominasi untuk memantulkan cahaya dan menjaga suasana terang. Beberapa kantor modern bahkan memilih konsep plafon terbuka (ekspos instalasi) demi estetika industrial - namun jika plafon gypsum digunakan, biasanya polos rapi. | Bangunan komersial bervariasi: Toko bisa menggabungkan estetika dan branding (misal plafon dengan warna atau bentuk sesuai brand). Restoran atau kafe mungkin menambahkan elemen dekoratif pada plafon (balok palsu, gantungan). Gedung seperti bioskop atau aula bisa memadukan gypsum dengan panel akustik pola tertentu untuk estetika sekaligus fungsi peredam suara. |
| Kebutuhan Isolasi | Rumah bisa membutuhkan isolasi panas tambahan di atas plafon gypsum, terutama untuk atap dak beton atau genting yang terpapar matahari langsung, supaya ruangan di bawahnya lebih sejuk. Material isolasi (misal glasswool) dapat dibentangkan di atas plafon. Isolasi suara biasanya tidak prioritas kecuali rumah di area bising. | Kantor/ruang kerja lebih fokus ke isolasi suara agar setiap ruangan tenang dan tidak saling mengganggu. Sering digunakan insulasi akustik di plafon (glasswool/rockwool di atas gypsum) untuk meredam kebisingan antar ruangan atau meredam echo, apalagi di ruang meeting. Isolasi panas juga dipakai untuk efisiensi AC (ruangan lebih cepat dingin jika plafon diberi lapisan insulasi). | Bangunan komersial menyesuaikan fungsi: Toko kecil mungkin tidak banyak isolasi tambahan selain standar. Namun, bioskop, studio, atau ballroom akan menambahkan insulasi akustik tebal di balik plafon gypsum untuk kualitas suara. Area seperti dapur restoran atau laundry mungkin perlu plafon khusus (material tahan lembap/panas) atau tambahan insulasi panas karena suhu tinggi. |
Intinya, teknik dasar pemasangan plafon gypsum sama di mana pun, namun detail pelaksanaannya menyesuaikan kebutuhan ruangan. Untuk rumah tinggal, Anda mungkin lebih mengejar estetika dan kenyamanan suhu; di kantor fokus pada fungsional dan akustik; sementara bangunan lain menyesuaikan kombinasi keduanya. Selalu komunikasikan hal ini sejak perencanaan: misalnya, sediakan rangka ekstra atau dudukan bila akan memasang lampu berat di rumah, atau pilih papan gypsum akustik berlubang untuk ruang auditorium. Dengan penyesuaian yang tepat, plafon gypsum dengan rangka hollow baja ringan bisa diaplikasikan optimal di berbagai jenis bangunan.










Post a Comment